
تمكن أهمية مخططات السباكة في تجنب المشاكل المستقبلية في دورات المياه وخاصة عندما تكون التمديدات في الحوائط أو في الأرضيات فلابد من اختيار الأقطار وعمل التمديات سواء للتغذية أو للصرف وفق كود البناء وبما يتوافق مع طبيعية المشروع. تُعَد أعمال السباكة هي أهم بنود التشطيب لأي وحدة عقارية، وأي تنفيذ غير دقيق فيها يؤدِّي إلى أضرار جسيمة على المنشأة وساكنيها
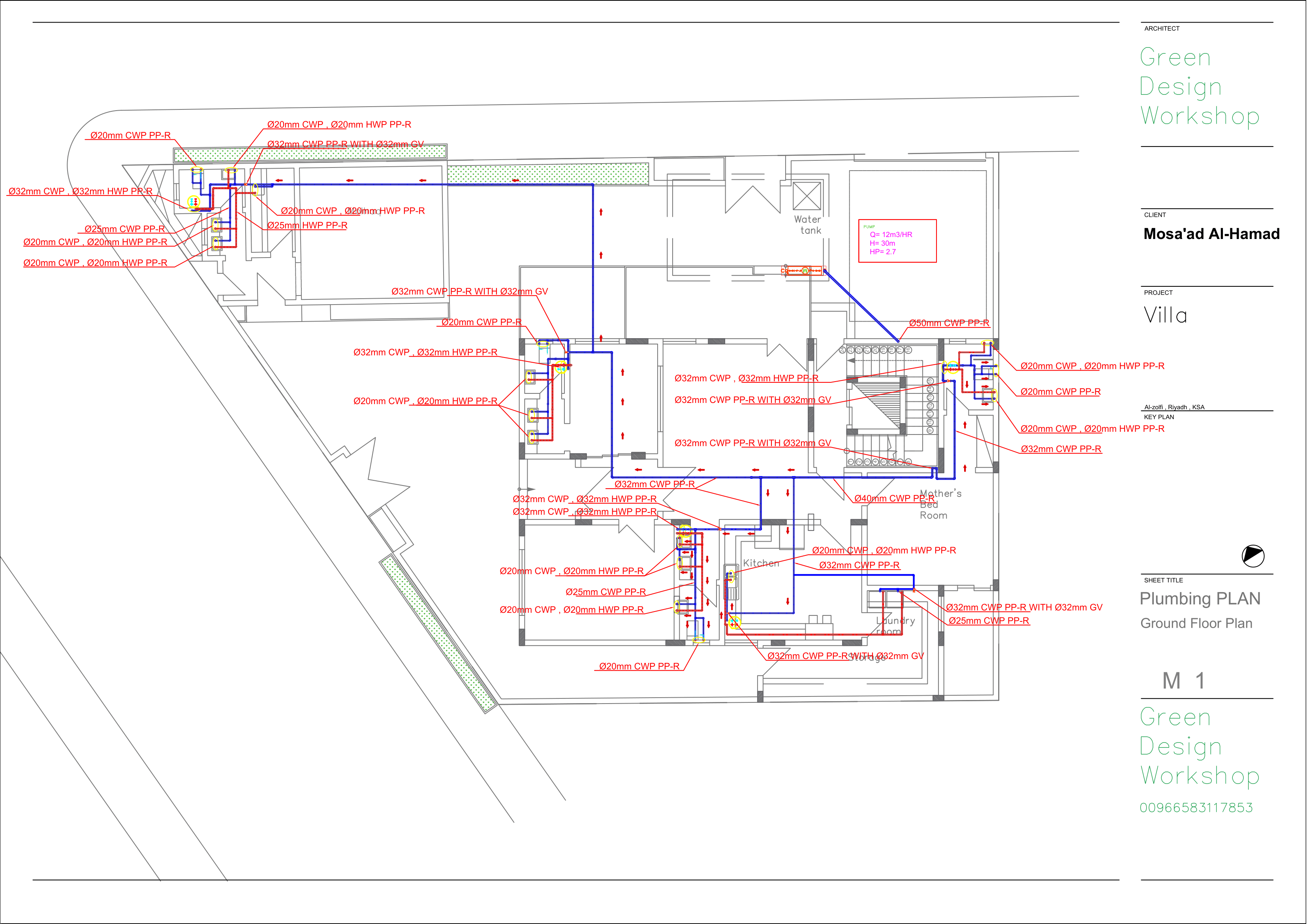
مشروعنا الحالي هو تصميم نظام السباكة (مخططات شبكات إمدادات المياه وخطط أنظمة الصرف الصحي) لفيلا سكنية في المملكة العربية السعودية - الرياض
في البداية تم العمل على تحديد سعة الخزان السفلي وعند معرفة حاجة العميل لخزان علوية لتغذية دورات المياه تم حساب سعة الخزان العلوي كذلك، بعد ذلك تم البدء في إعداد مخططات تغذية في البداية يتم تحديد مكان مخصص لمضخة الرفع وربطه إلى الخزان العلوي وبعد ذلك تحديد الأقطار المناسبة لكل وحدة صحية بالقطر المناسب وفق كود البناء السعودي. بعد ذلك تم تمديد مواسير التغذية لكل دورة مياه بالإضافة إلى عمل سخان بحجم 30 لتر في كل دورة مياه
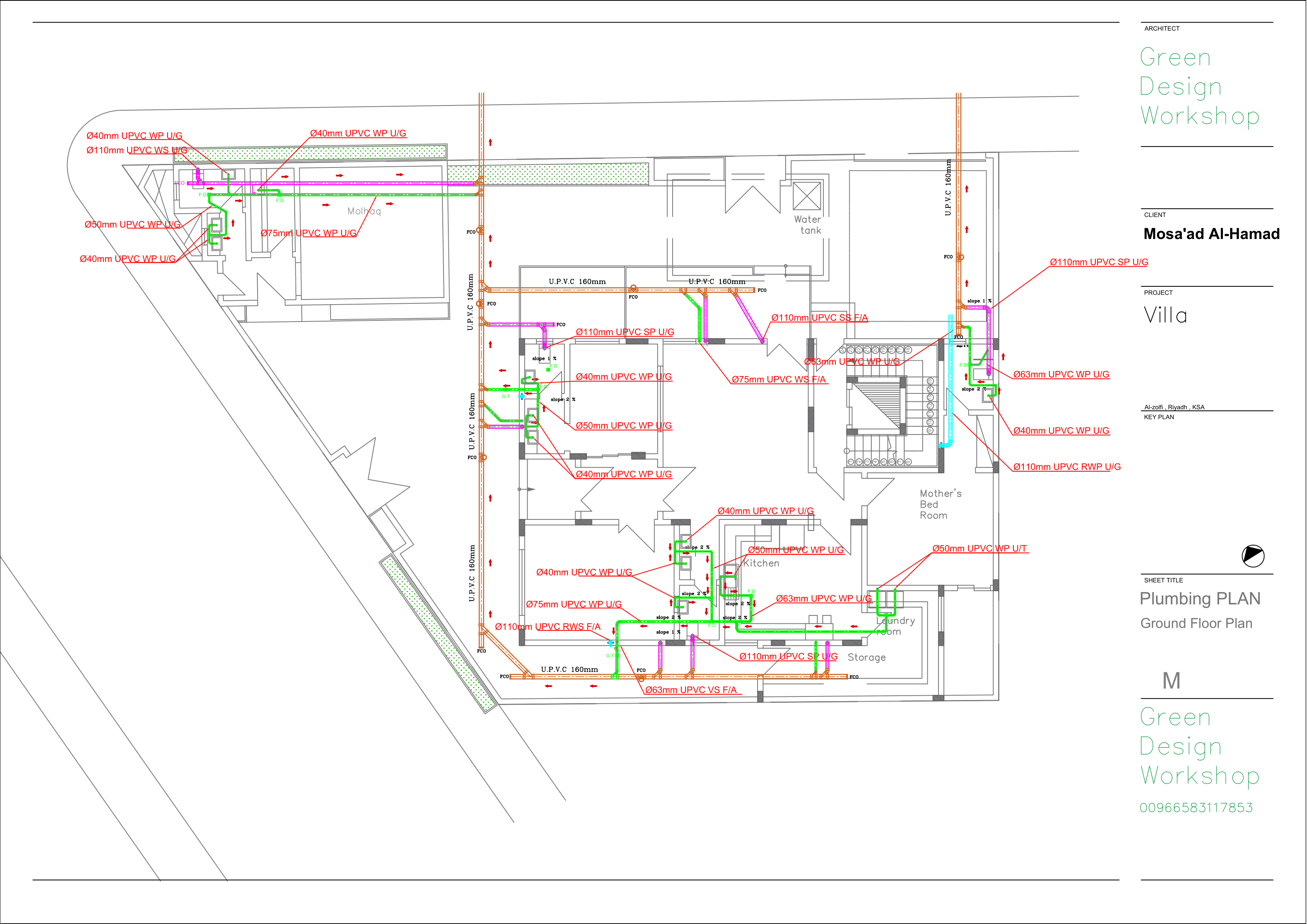
في الخطوة التالية العمل على مخططات الصرف وتم اعتماد طريقة ماسورة للصرف الخفيف وماسورة للصرف الثقيل وتجديد الأقطار وفق كود البناء السعودي. تم تحديد أقطار مواسير صرف التكييف بالإضافة إلى تحديد أقطار مواسير صرف المطر
مخرجات المشروع : مخططات لنظام تمديدات المياه ونظام الصرف مع كامل التفاصيل لتسهيل عمليات التنفيذ